

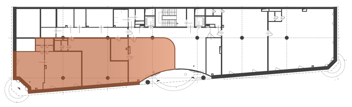
1086 Budapest, Szeszgyár utca 4.
Elérhető
BHI123
BHI123
Méret (m²)
188.73 m²
188.73 m²
Szobák száma
Emelet
földszint
földszint
Tájolás:
Lakáshűtés: Igen
Fürdő és WC: —
213 770 000 Ft
Ajánlott lakások
Töltés...
Találatok száma: 154
Kérdésed van?
Kérdésed van, vagy szeretnél ajánlatot kérni a kiválasztott lakásokra?
Töltsd ki az alábbi űrlapot, és kollégáink hamarosan felveszik veled a kapcsolatot. Ha inkább közvetlenül szeretnél érdeklődni, bátran hívj minket vagy írj emailt – örömmel segítünk minden kérdésben.
További elérhetőségek
Értékesítési iroda
1115 Budapest, Bartók Béla út 152/c
Térkép



























